金沢市・能登地域での不動産購入・売却・買取
無料会員登録
ご来店予約
地域を選ぶ
石川県
富山県
さらに条件を絞り込む
~
フリーワードで検索
この条件で検索する
1~20 件目/69件
並び替え
選択した物件をまとめてお問い合わせ
新築一戸建て
モデルハウス分譲 -無二-
木の温もりある外観と市街地の洗練が融合した特別な邸宅
×
詳細を見る
3
北陸の厳しい気候にも耐える高性能住宅【ETUSUS】!中心部に近く暮らしやすさ間違いなし!
美意識を開放して、静寂を愉しむモダンスタイル。 中庭付き、プライバシー空間も確保できます。
1
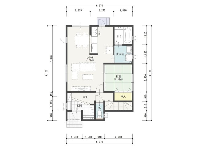
津幡町太田造成地内に3LDK!北陸の住まいに最適な性能の“平屋感覚”の家です!
\光あふれるLDKと充実収納♪家族の毎日に寄り添う特別仕様住宅が白帆台エリアに登場/
2
高性能構造と上質な設備を備えた7000万円台クラスの注文住宅仕様。ーモデルハウス特別分譲ー
4
こだわり分譲 -粋-
「今どきIoT × ZEH」で叶える、次世代のスマートハウスで快適!ワンランク上の暮らしを実現!
14
スーパーやクリニックが徒歩圏内!のと里山海道高松ICまで車で約3分の好立地に新築4LDK!
8
かほく市高松ICへのアクセス良好!スーパーやクリニックがすぐそば好立地の4LDK新築(^^)/
7
快適性・安心・経済性を兼ね備えた、これからの暮らしにふさわしい一邸
24
津幡町太田に新築戸建♪暮らしやすいエリアです(^O^)
18
\ 駅チカ×自然のいいとこ取り!かほく市宇野気でゆったり暮らそう♪4LDK新築戸建登場/
29
平屋ならではのゆとりある暮らしと、自然を感じる住環境が魅力♪千里浜に2LDKの平屋住宅登場
19
家具付き新築戸建て♪自分らしい暮らしを実現しませんか?
13
注文住宅のような、家具付き物件♪
16
木の素材と窓を活かした快適空間。 水平屋根の外観が人気のデザイン。
26
落ち着いた住環境◎かほく市大崎エリアに4LDK新築戸建
お気に入り
かほく市大崎東エリアに4LDK新築戸建登場♪
イオンモールかほく近くの穏やかな住宅街☆かほく市大崎に3SLDK新築戸建
かほく市大崎エリアに新築登場!
中古一戸建て
新築マンション
中古マンション
土地
収益・事業用