金沢市・能登地域での不動産購入・売却・買取
無料会員登録
ご来店予約
地域を選ぶ
石川県
富山県
さらに条件を絞り込む
~
フリーワードで検索
この条件で検索する
1~20 件目/117件
並び替え
選択した物件をまとめてお問い合わせ
新築一戸建て
こだわり分譲 -粋-
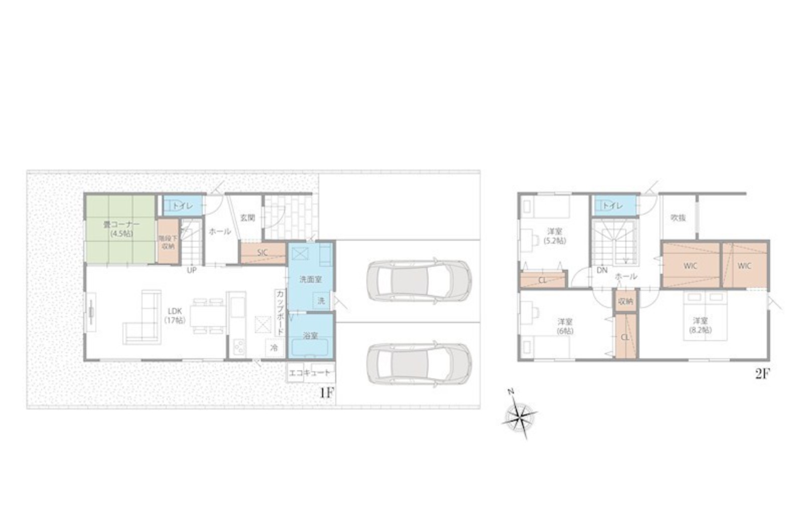
「今どきIoT × ZEH」で叶える、次世代のスマートハウスで快適!ワンランク上の暮らしを実現!
×
詳細を見る
11
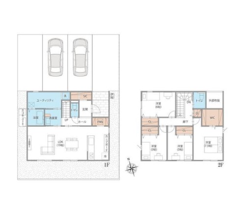
スーパーやクリニックが徒歩圏内!のと里山海道高松ICまで車で約3分の好立地に新築4LDK!
8
かほく市高松ICへのアクセス良好!スーパーやクリニックがすぐそば好立地の4LDK新築(^^)/
6
快適性・安心・経済性を兼ね備えた、これからの暮らしにふさわしい一邸
22
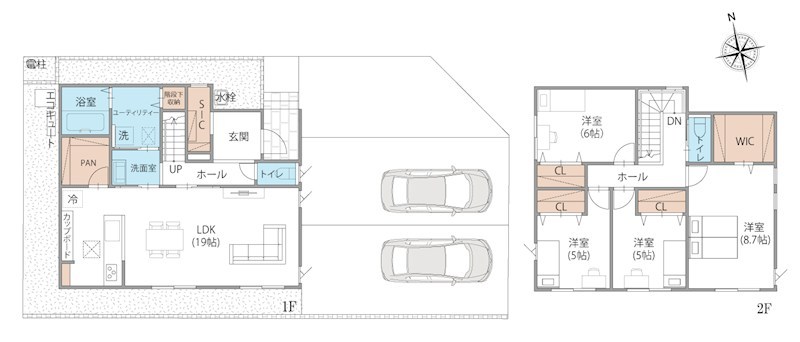
\ 駅チカ×自然のいいとこ取り!かほく市宇野気でゆったり暮らそう♪4LDK新築戸建登場/
29
木の素材と窓を活かした快適空間。 水平屋根の外観が人気のデザイン。
25
土地
\建築条件なし!白尾エリアに約51坪の住宅用地登場/
お気に入り
穏やかな住環境が魅力の白尾エリアに約52坪の住宅用地登場!
1
穏やかな住環境が魅力の白尾エリアに約53坪の住宅用地登場!
★かほく市大崎エリアに平屋が登場★
4
中古一戸建て
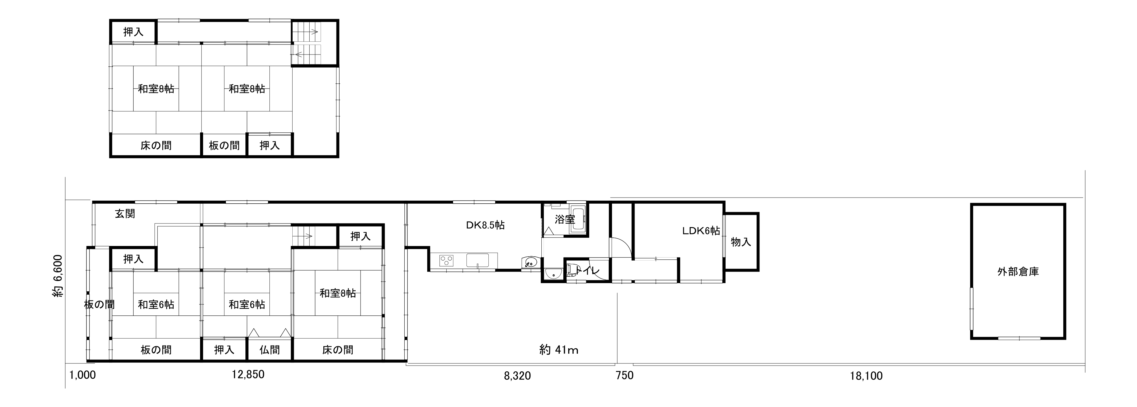
作業場として、住環境として多機能な2棟の建物付き中古戸建の登場!!
暮らしやすさが、ここに揃う。かほく市内日角ワの3SLDK
9
成約済
穏やかな住宅街×生活利便施設充実◎白尾エリアに4LDK新築戸建
2
商談中
暮らしやすい住環境!白尾エリアに3LDKSの新築戸建登場
かほく市内日角に広々約87坪の土地登場!夢のマイホームを実現する絶好のチャンス☆
【2026年3月完成予定】JR宇野気駅まで徒歩約8分!利便性の高いかほく市外日角に新築4LDK!
3
高松駅近!理想の南向き整形地です!
静かで住みやすい住宅地として人気の『浜北』エリア。ファミリーにもおすすめな3LDKの中古戸建。
10
かほく市内日角に約55.2坪の土地登場!
約55.2坪の整形地!落ち着いた周辺環境のかほく市内日角に登場です!
5
新築マンション
中古マンション
収益・事業用